1999-1
土地
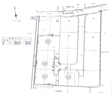
HT藤山3-1号地
宅地 面積
宇部市東藤曲二丁目
価 格 550万円
坪単価 8.4万円
面 積 216.97㎡(65.63坪実測)
アクセス JR宇部線 岩鼻駅 車 5分
校区 藤山小学校
※詳細は自治体にご確認ください。
間取 り 図 内観、外観写真
クリックで拡大画像をご覧いただけます
物件 概要
| 物件種目 |
売地
|
|---|---|
| 現 況 | 更地 |
| 建ぺい率 | 60% |
| 容 積 率 | 200% |
| 土地権利 | 所有権 |
| 地 勢 | 平坦 |
| 建築条件 | 無 |
| 国土法提出 | 否 |
| 借地権種類 | |
| 借 地 料 | |
| 借地期間 | |
| 引渡年月日 | 相談 |
| 私道面積 | |
|---|---|
| 接道状況 | 一方 15m 公道 北 幅員 5m |
| 設 備 | |
| 用途地域 | 第一種中高層住居専用地域 |
| 都市計画 | 非線引区域 |
|
他の法令上
の制限 |
|
| 敷金 保証金 | |
| 取引態様 | 売主 |
| 特記事項 | |
| 情報掲載日 | 2025年08月01日 |
|---|---|
| 次回更新予定 |
お問い合せ
CONTACT
お気軽にご相談ください。相談やお見積もりは無料です。
お電話での
お問い合せ
9:30~17:30 ( 水曜・日曜・祝日除く)
フォームでの
お問い合せ